項目是由九龍建業和其執行董事柯沛鈞合作發展的分層住宅新盤,位於港島西營盤高街6號,預計關鍵日期為2026年4月30日。 |
半山名滙(Upper Manor)項目屬單幢式設計,樓高26層,共配置兩部升降機。
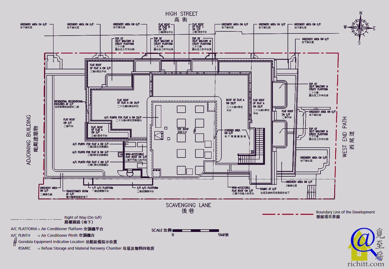
大廈不設庇護層,3樓至頂層29樓屬住宅樓層,每層各設1或5伙單位 (3至28樓每層各設5伙;29樓僅設1伙),合共提供111伙分層住宅。
單位的實用面積由221至774平方呎平方呎,樓底高度由2.9至4.4米,間隔涵蓋一至三房,普遍採用開放式廚房設計,僅有一伙設獨立式廚房,多數單位配置露台及工作平台。
單位供應以一房戶及兩房戶為主,合共佔單位總數逾七成九。其中一房戶設66伙,實用面積介乎221至320平方呎平方呎;而兩房戶則有22伙,實用面積均為394平方呎。至於三房戶共設23伙,實用面積由462至774平方呎。
戶型分有標準戶、連平台戶及頂層特色戶
標準戶共有107伙,分佈3至28樓,實用面積為257至464平方呎,戶戶配置22平方呎露台和16平方呎工作平台。
連平台戶共設3伙,位於3樓A至C室,實用面積分別為221或280平方呎,各配置55或204平方呎平台。
頂層特色戶僅有1伙,位於29樓A室,實用面積為774平方呎,各配置673平方呎平台和590平方呎天台,屬項目最大單位以及唯一一戶設有獨立式廚房。
項目會所、景觀、交通、生活配套及社區康樂設施
配套設施方面,項目設有1,377平方呎住客會所,另有133平方呎綠化地帶。
而截至項目發表售樓說明書時,其綠色建築認證的暫定評級為「先決條件達標」。
景觀方面,項目中低層單位以望周邊樓景為主,部份向北高層單位或可眺望維港一帶海景,向南高層單位則望西半山一帶樓景及翠綠山景。
交通方面,樓盤距離港鐵西營盤站約3至5分鐘步程。而於皇后大道西及德輔道西沿途有電車、多條巴士及小巴路線,來往港九新界多個地方。
生活配套方面,項目預計提供一至兩層商舖;同時區內民生商店及食肆林立;街市、醫院等社區設施亦一應俱全。
社區康樂設施方面,樓盤鄰近香港佐治五世紀念公園及七人足球場、城西公園。區內另有西湖里遊樂場、李陞街遊樂場、中山紀念公園及游泳池供公眾使用。
項目背景及動向
項目門牌涵蓋高街2B、2C、4、4B、6及6A號,地盤面積約5,469平方呎。項目前身為兩幢六層高舊樓,分別位於高街2B至2C號,以及高街4、4B、6及6A號。
其中高街2B至2C號於1963年落成,共提供10伙住宅及兩個地舖,地盤面積約1,948.78平方呎;而高街4、4B、6及6A號於1966年落成,共提供20伙單位,地盤面積約3,520平方呎。
據媒體2020年7月報導,九龍建業執行董事柯沛鈞以個人名義收購的高街4、4B、6及6A號舊樓,向土地審裁處申請強拍,估值約1.7億元。當時柯沛鈞已持有約85%業權,餘下3個單位未成功收購。
九龍建業在2020年10月下旬宣佈,與執行董事柯沛鈞合作重建位於香港高街2B、2C、4、4B、6及6A號的物業,雙方將按60%(九龍建業)比40%(柯沛鈞)的比率分攤就重建產生的成本及開支以及分佔所產生的盈利。
其後柯沛鈞於同年12月中旬,再向土地審裁處申請強拍高街2B至2C號,估值約9,099萬元,當時柯沛鈞已持有項目約83.33%業權,僅餘一個地鋪及一伙住宅尚未收購。
九龍建業有限公司(市務及銷售部)高級銷售經理陳淑芳在2021年12月10日指,將於2022年下半年會推出項目,為單幢式精品豪宅。
項目於2022年9月獲屋宇署批出建築圖則,可建1幢26層高商住樓宇,總樓面面積約50,147平方呎。
陳淑芳在2023年11月27日對媒體表示,項目以精品豪宅定位,共提供100多伙單位,主打1房及2房,目標客源是植根半山區一帶的年輕專業人士,以及追求高生活品味的買家,預計2024年首季展開銷售。
發展商於2024年8月29日正式公佈項目中英文名稱,並表示項目估計在9月底至10月初推售,稍後將盡快上載售樓說明書。
陳淑芳指項目名稱中的「半山」兩字意味項目坐擁西營盤半山一帶的優越地利,盡享悠然愜意的居住環境;「名滙」二字則凸顯其得天獨厚的地理位置,鄰近知名學府,加上室內外設計均採輕奢格調,流露出尊貴的豪宅氣派。
而項目的英文名稱則代表項目延續「63 Pokfulam」及「加多近山」系列等集團其他項目的優勢,並傲踞傳統豪宅區。
根據媒體2024年10月5日報導,預料項目短期內上載樓書及推售,定價將參考同區新盤造價而定。
九建市務及銷售部助理總經理陳淑芳在2025年2月7日表示,計劃於2025首季以價單形式推出項目,價格將參考同區樓盤。
項目最終於2025年7月18日上載了售樓說明書,同月25日公佈首份銷售安排,於29日推出33伙招標,間隔涵蓋一至三房連套房,實用面積介乎257至462平方呎。
項目宣傳影片:
Upper Manor 半山名滙@Youtube | 日期:2025年7月27日 | 2:04分鐘
項目在2025年8月4日開放示範單位於公眾參觀。
按此瀏覽 >> 價單列表
按此瀏覽 >> 銷售安排
按此瀏覽 >> 成交紀錄冊
示範單位地址及查詢電話:按此瀏覽
樓盤資料
| 所在地區:港島中西區西營盤 樓盤類別:單幢式大廈 中文地址:高街6號 英文地址:6 High Street 大廈座數:1座 大廈層數:26層(不設4樓、13樓、14樓及24樓) 單位總數:111伙 樓層高度:2.9至4.4米 實用面積:221至774平方呎 單位間隔:1至3房 管理公司:康居物業管理有限公司 管理月費:尚待公佈 屋苑車位:不設 小學校網:11校網 中學校網:中西區 預計落成日期:2026年4月30日 預計關鍵日期:2026年4月30日 官方網頁:按此瀏覽 |





