項目是由盈科大衍地產及資本策略合作發展的分層住宅新盤,位於港島中環己連拿利3號,預計關鍵日期為2026年6月30日。 |
雅盈峰 (Central Residence By The Park) 屬單幢式設計,樓高28層,共配置兩部升降機。
大廈於天台設有庇護層,2樓至頂層32樓屬住宅樓層,每層各設1至6伙單位(31及32樓僅設一伙;25至30樓每層各設兩伙;15至23樓每層各設三伙;2樓則設四伙;3至12樓每層各設六伙),合共提供99伙分層住宅。
單位的實用面積介乎約380至2,523平方呎,樓底高度由2.85至4米,間隔涵蓋一至四房,分別採用開放式或獨立式廚房設計。戶戶配置露台及工作平台。
發展商表示,單位供應以三、四房為主。項目邀請了著名建築師丹下憲孝,享譽國際的室內建築師André Fu,以及知名園景大師、moku 工作室創辦人菅宏文合作設計。
戶型分有標準戶、連平台戶及連天台戶
標準戶共有91伙,分佈於3至30樓,實用面積由380至1,608平方呎,戶戶配置22至59平方呎露台及16平方呎工作平台。
其中3至12樓E及F室為項目最小單位,實用面積380平方呎,屬1房 (連套房) 間隔。
連平台戶只設7伙,位於2樓A室D室、25樓A、B室和31樓A室,實用面積介乎509至2,523平方呎,各配置17至435平方呎平台、22至80平方呎露台及16平方呎工作平台。其中31樓A室另帶33平方呎空調機房。
當中31樓A室為項目最大單位,實用面積2,523平方呎,屬四套房及儲物室連廁間隔,外連258平方呎平台。
連天台戶僅有1伙,位於32樓A室,實用面積為2,520平方呎,屬四套房及儲物室連廁間隔,配置472平方呎天台(經內置樓梯連接)、71平方呎梯屋、33平方呎空調機房、80平方呎露台及16平方呎工作平台。
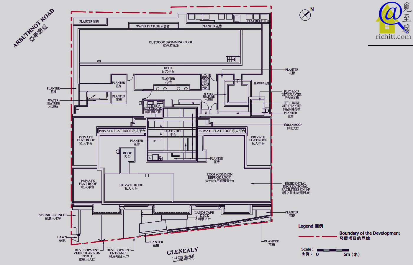
項目會所、景觀、交通、生活配套及社區康樂設施
配套設施方面,樓盤設有9,358平方呎住客會所,提供戶外泳池等多項玩樂設施,另有941平方呎園林區/綠化地帶。
而項目的綠色建築認證的暫定評級為「不予評級」。
景觀方面,項目中高層單位預料可遠眺香港公園及香港動植物公園,以及禮賓府、中環及金鐘一帶景致。其中項目15至23樓B室提供逾8米闊的橫廳,並連接「三合一露台」 ,而且廳房同向,可飽覽香港動植物公園及香港公園雙園延綿翠景。
交通方面,項目距離港島線中環站約8至10分鐘步程。在亞畢諾道、雲咸街、奧卑利街、皇后大道中沿線亦有多條巴士及小巴路線,來往港九多個地方。
生活配套方面,項目於地下設有餐飲設施,同時樓盤毗鄰蘇豪區及蘭桂坊等酒吧、特色食肆地帶,中環商業區另有多間商場、零售商戶、酒樓及超級市場,提供多元化之飲食及購物選擇。
社區康樂設施方面,項目鄰近佔地60萬方呎的香港動植物公園,區內另有有孫中山紀念館及噴水池平台、遮打花園、香港大會堂及圖書館。
項目背景及動向
項目前身為園林大樓及鐵崗兩座舊樓,門牌分別為己連拿利3至4號和5至6號,地盤面積約1.17萬平方呎,其中園林大樓佔地約5,753平方呎,屬「住宅(甲類)」用途。
據悉,發展商資本策略在2012年開始對園林大樓進行收購,於2014底完成以合共約6.35億元統一業權。而市場估計,該公司之前收購上述己連拿利3至4號成本共近8億元,5至6號則約9億元。
資本策略於2015年7月曾向城規會申請,重建園林大廈成1幢22層高連2層平台的商廈,地積比率12倍,總樓面面積6.9萬平方呎。不過上述申請由於區內從住宅改劃為商廈成功個案不多,加上收到全數反對的意見書,故發展商最後取消申請。
據媒體2018年1月16日報導,資本策略將持有的中環己連拿利3至6號地盤一半權益,售予盈大地產。根據合營安排,資本策略將收取現金約20.02億元及分享項目所有未來溢利50%。
而盈大地產在購入上述地盤後,同年再向向城規會申請擬建1 座24層高(包括4 層地庫)商用物業,涉樓面面積14萬平方呎。不過該方案不獲規劃署支持。
屋宇署資料顯示,項目的建築圖則已於2021年7月批出,可建一幢建於一層地庫之上的30層高商住物業,住宅部分佔91,855平方呎,商業則佔約3,501平方呎。
之後屋宇署於2024年3月21日的公佈中指出,該項目已於該年1月份動工。
發展商在2025年9月26日正式公佈項目中英文名稱。盈大地產銷售及市務總監陳惠慈表示,項目中文名稱中的「雅」,取自與項目相連的半山雅賓利道,喻意典雅高貴;「盈」有豐盛之意,亦代表盈大地產的口碑;「峰」則象徵項目位於高處、周邊群山環繞的意境。而英文名稱CENTRAL RESIDENCE則呼應項目傲踞中環半山、眾多世冑名流簇居的傳統豪宅地段。
項目於2026年1月14日上載了售樓說明書,預計短期內公佈首張價單或銷售安排。
樓盤資料
| 所在地區:港島中西區中環 樓盤類別:分層住宅 中文地址:己連拿利3號 英文地址:3 Glenealy 物業幢數:1棟 物業層數:28層(不設4樓、13樓、14樓及24樓) 單位總數:99伙 樓層高度:2.85至4米 實用面積:約380至2,523平方呎 單位間隔:1至4房 管理公司:南盈物業管理有限公司 管理月費:尚待公佈 屋苑車位:44個(停車位:39、暢通易達:1、訪客:1、上落貨:1、電單車:2) 小學校網:11校網 中學校網:中西區 預計落成日期:2026年6月30日 預計關鍵日期:2026年6月30日 官方網頁:按此瀏覽 |





