項目是由英皇國際發展的分層住宅新盤,位於港島西半山般咸道28號,預計關鍵日期為2026年9月30日。 |
the MVP屬單幢式設計,樓高27層,共配置三部升降機。
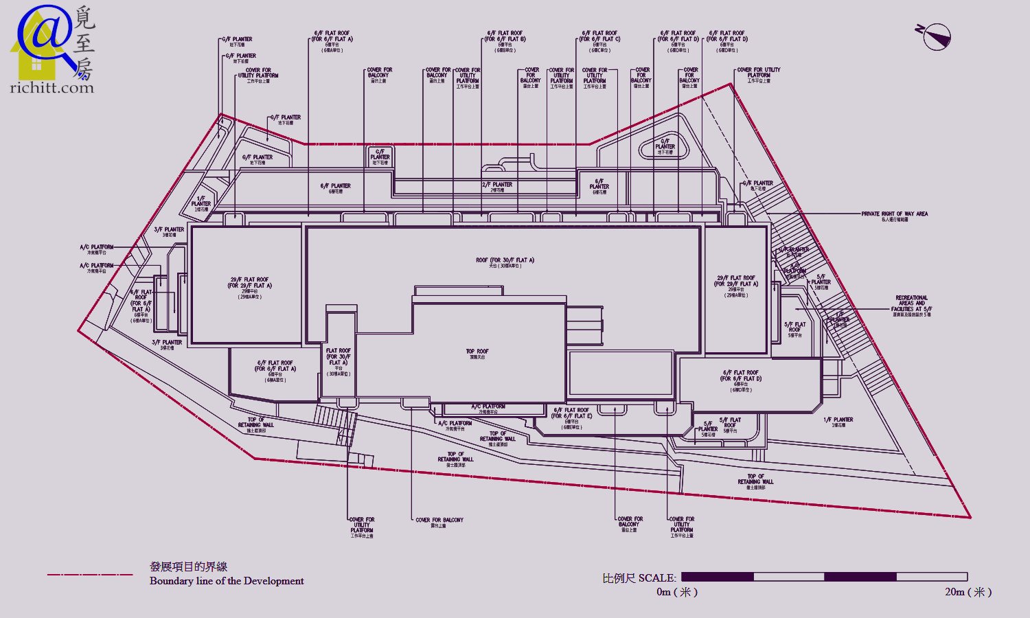
大廈不設庇護層,6樓至頂層30樓屬住宅樓層,每層各設1至6伙 (6樓至22樓每層各設6伙;23至28樓每層各設5伙;29及30樓只設1伙),合共提供117伙分層住宅。
單位的實用面積介乎425至2,990平方呎,樓底高度由2.65至4.4米,間隔涵蓋二至五房,分別採用開放式或獨立式廚房設計,普遍單位配置露台及工作平台。
單位供應以兩房戶為主,佔總伙數約57%。
戶型分有標準戶、低層連平台戶、高層連平台戶、連天台戶
標準戶共有110伙,分佈於6至28樓,實用面積為454至1,469平方呎,戶戶配置22至35平方呎露台及16平方呎工作平台。
低層連平台戶則設5伙,位於5樓A至E室,實用面積由425至1,244平方呎,各配置64至457平方呎平台。
其中6樓E室屬全盤面積最小單位,實用面積425平方呎,屬2房間隔,配置263平方呎平台。
高層連平台戶只有1伙,位於29樓A室,實用面積2,961平方呎,配置1,158平方呎平台、45平方呎露台和16平方呎工作平台。
頂層連天台戶僅設1伙,位於30樓A室,實用面積為2,990平方呎,為項目最大單位,設有5間套房、儲物室連廁及化妝間,配置2,308平方呎天台、103平方呎梯屋、45平方呎露台及16平方呎工作平台。值得一提的是天台由內置樓梯連接,並設有室外泳池。
項目會所、景觀、交通、生活配套及社區康樂設施
配套設施方面,項目設有5,160平方呎住客會所及264平方呎園林區/綠化地帶。
值得一提的是項目的綠色建築認證的暫定評級為「金級」,表示其在能源消耗的表現十分出色。不過要留意樓盤範圍內存在斜坡/護土牆,業主可能須分擔日後維修責任及費用。
景觀方面,預料普遍單位向北享有維港海景,向南望西半山翠綠林景。
交通方面,樓盤距離港鐵西營盤站約10分鐘步程;同時在般咸道沿線附近有多條巴士及小巴路線,來往港島多個地方。
生活配套方面,項目鄰近的半山扶手電梯及卑利街一帶座落多間特色餐廳及酒吧;於堅道亦有民生商店及食肆可供選擇。而樓盤周邊亦有多間中小學及大學、醫院可應付日常生活需要。
社區康樂設施方面,樓盤附近有香港醫學博物館、卜公花園及堅道花園供公眾參觀使用。
項目背景及動向
項目原址為般含臺(般咸道24至26號)及祟華大廈(般咸道28至30號),兩座物業合併後的地盤面積約13,333平方呎,可建樓面面積約11萬平方呎。
發展商英皇國際近年積收購般含臺和祟華大廈單位,並在2018年申請將崇華大廈強拍以統一業權,其後在2019年6月再收購該物業三伙單位,每伙成交價介乎3400萬至4600萬元,收購呎價介乎5.55萬至6.77萬元,總額涉1.15億元。
據了解,英皇所持有般含臺物業業權份數截至2019年7月為止已達98%,僅餘1伙住宅未能收購,發展商亦已對該整棟物業申請強拍。
發展商在2019年8月2日表示,如成功統一上述兩幢物業業權,將投資約25億元發展項目。
項目2020年10月份獲屋宇署批出建築圖則,准建1幢27層高住宅大廈。
根據屋宇署資料月報顯示,項目已於2023年4月動工,涉及80伙單位。
英皇國際在2025年9月5日正式公佈項目名稱,不設中文名。發展商設,其英文名稱寓意「The Most Valuable Place for The Most Valuable People」
英皇國際副主席楊政龍同日表示,項目將於今日同步上售樓說明書,隔天(6日)會開放示範單位,預計周內上載銷售安排,最快下周開售,並會視乎市場反應,考慮以招標形式發售。
示範單位地址及查詢電話:按此瀏覽
樓盤資料
| 所在地區:港島中西區西半山 樓盤類別:分層住宅 中文地址:般咸道28號 英文地址:28 Bonham Road 建築幢數:1幢 建築層數:27層 (不設4 樓、13 樓、14 樓及 24 樓) 單位總數:80伙 樓層高度:2.65至4.4米 實用面積:425至2,990平方呎 單位間隔:2至5房 管理公司:英皇物業管理 ( 香港 ) 有限公司 管理月費:尚待公佈 屋苑車位:29個(住客:27、訪客:1、電單車:1) 小學校網:11校網 中學校網:中西區 預計落成日期:2026年9月30日 預計關鍵日期:2026年9月30日 官方網站:按此瀏覽 |






